Apartament LUX 2 camere | finisaje premium | AVIATIEI - Blvd. Aerogarii | Bloc Nou 2025

190.000€+TVA
ID:1958  Bucuresti,  Aviatiei

Descriere apartament

MTK Real Estate va propune spre vanzare un apartament luminos si spatios cu 2 camere, situat in una dintre cele mai ravnite zone ale Bucurestiului: Aviatiei. Pozitionat in proximitatea Bulevardului Aerogarii, apartamentul ofera acces rapid catre principalele centre de business, precum zona Pipera, dar si catre parcuri, spatii verzi si o infrastructura moderna de transport. Este alegerea ideala pentru cei care isi doresc un echilibru intre dinamismul vietii profesionale si confortul unui camin modern, bine pozitionat.

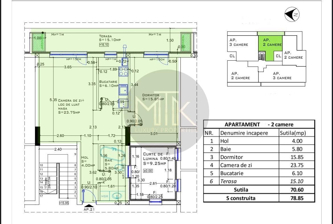
Imobilul face parte dintr-un bloc nou, finalizat in anul 2025 si se afla la etajul 4/5. E construit cu materiale premium si dotat cu facilitati de top, precum garaj subteran si structura de rezistenta de inalta calitate. Apartamentul are o suprafata utila de 71 mp, este complet decomandat si excelent compartimentat, punand accent pe lumina naturala si spatiile generoase.

Apartamentul este compartimentat astfel: living generos de 24 mp cu zona de dining si acces catre terasa exterioara; dormitor spatios de 16 mp cu iesire proprie pe terasa; bucatarie separata, inchisa, de asemenea cu acces catre terasa; baie de 6 mp; hol de 4 mp. Terasa extinsa, in suprafata de 15 mp, poate fi accesata atat din living, cat si din dormitor si bucatarie. Inaltimea camerelor este de 2.85 m, ceea ce accentueaza senzatia de spatiu si confort.

Calitatea constructiei este garantata prin utilizarea unor materiale si finisaje premium: structura realizata din beton B400 si fier beton de inalta rezistenta; zidarie Porotherm Austria atat la exterior, cat si la interior; fatada ventilata realizata cu sistem CAPAROL, tip Dalmatina ignifug; tamplarie tripan cu 7 camere pentru eficienta termica si fonica; balcoane moderne cu sticla securizata dubla. Cladirea dispune de garaj subteran cu rampa dotata cu sistem de degivrare, casa scarii finisata cu granit si marmura, lift Schindler cu capacitate de 6 persoane si toate utilitatile necesare deja racordate: gaze, curent, apa si canalizare.

Apartamentul se preda complet finisat la cheie, in termen de 30–60 de zile de la semnarea contractului, in functie de finisajele alese de viitorii proprietari. Acest interval permite personalizarea locuintei conform preferintelor individuale, pastrand totodata un termen de predare rapid si eficient.

Un avantaj important este faptul ca finisajele sunt incluse in pretul achizitiei, iar cumparatorii au posibilitatea de a-si alege personal variantele preferate din gamele premium puse la dispozitie in colaborare cu DELTA STUDIO. Optiunile includ gresie, faianta, parchet, usi de interior, obiecte sanitare si plinte. Aceasta flexibilitate permite amenajarea unui spatiu modern, adaptat stilului si gustului fiecarui proprietar.

Dotari Interioare Premium
Apartamentul beneficiaza de dotari moderne si materiale de ultima generatie:



Incalzire in pardoseala TECCE (made in Germany)


Centrala termica proprie pentru fiecare apartament (contorizare separata 100%)


Instalatii electrice GEWISS


Sistem de canalizare antifonat


Usa de intrare Safe, cu inchidere in 3 puncte (valoare 4.500 lei)


Glafuri din granit pentru un aspect elegant si rezistent.



*Parcare contra-cost: 20.000 euro + TVA/ loc
*Fotografiile interioare sunt realizate intr-un apartament de 3 camere din cadrul proiectului si au rolul de a exemplifica calitatea materialelor si nivelul finisajelor de care veti beneficia la momentul predarii apartamentului.

*Comision: Standard.

Ai nevoie de finantare?
Colaboram cu brokeri de incredere care te pot indruma catre cele mai bune oferte de finantare disponibile (Comision 0%).

Acest imobil nu este exact ceea ce cauti?
Putem gasi o alternativa potrivita pentru tine.

Pentru lista actualizata de disponibilitati, pret si vizionari, contacteaza-ne.

Tel: 0740.754.469
E-mail: sales@mtkrealestate.ro


Multumim! 
Echipa MTK Real Estate! 

Caracteristici apartament

  • Zona: Aviatiei
  • Suprafata utila: 71 mp
  • Confort: lux
  • Compartimentare: decomandat
  • Etaj: 5/5
  • Numar Bai: 1
  • Numar Balcoane: 1
  • Numar Camere: 2
  • An Constructie: 2025
  • Clasa Energetica: A

Caracteristici generale apartament

  •  Acces: Fata,
  •  Balcoane: Nu este inchis,
  •  Bucatarie: Inchisa, Nemobilata, Da,
  •  Calorifere: Nu,
  •  Contorizare: Apometre, Contor electric, Contor gaz,
  •  Destinatie: Locuinta,
  •  Dotari: Senzor incendii, WC Serviciu,
  •  Electrocasnice: Fara,
  •  Ferestre: Aluminiu,
  •  Geam baie: Nu,
  •  Incalzire: Centrala proprie, Incalzire prin pardoseala,
  •  Interfon: Interfon,
  •  Izolatii termice: Exterior,
  •  Lift: Lift,
  •  Mobilat: Nemobilat,
  •  Pereti: Nefinisat,
  •  Podele: Nefinisat,
  •  Servicii: Administrare, Menaj,
  •  Stadiu Finisare: Finalizat,
  •  Strazi: Iluminat stradal, Asfaltate, Mijloace de transport in comun,
  •  Structura Casa: Caramida,
  •  Tip Bloc: Bloc Mixt,
  •  Tip Structura Bloc: Caramida,
  •  Usa intrare: Metal,
  •  Usi: Usi celulare,
  •  Utilitati: Curent, Gaz, CATV, Canalizare, Apa,
  •  Vecinatati Spatii: Metrou, Autobuz, Zona comerciala, Banca, Supermarket, Cinema, Fastfood, Trafic Pietonal, Intersectie circulata, Benzinarie, Hotel, Parc, Mall, Restaurant/pub, Centru universitar, Scoala/gradinita, Central,
  •  Zidarie: Caramida,

Harta

Oferte similare

vanzare
185.000 EUR

City Point | Apartament 2Cam. LUX | Mobilat&utilat

Aviatiei, Bucuresti

MTK Real Estate va propune spre vanzare un apartament luminos si spati
icons 2
icons 1
icons 48 m2
vanzare
230.000 EUR

CLOUD 9 Residence | Apartament 2 camere I 1 LOC PARCARE INCLUS

Aviatiei, Bucuresti

MTK Real Estate va propune spre vanzare un apartament luminos si spati
icons 2
icons 1
icons 56 m2
vanzare
210.000 EUR

Apartament LUX 2 camere 103 mp | finisaje premium | AVIATIEI - Blvd. Aerogarii | Bloc Nou 2025

Aviatiei, Bucuresti

MTK Real Estate va propune spre vanzare un apartament luminos si spati
icons 2
icons 1
icons 91 m2
Ne puteti contacta pe
Tel: 0740754469 whatsapp